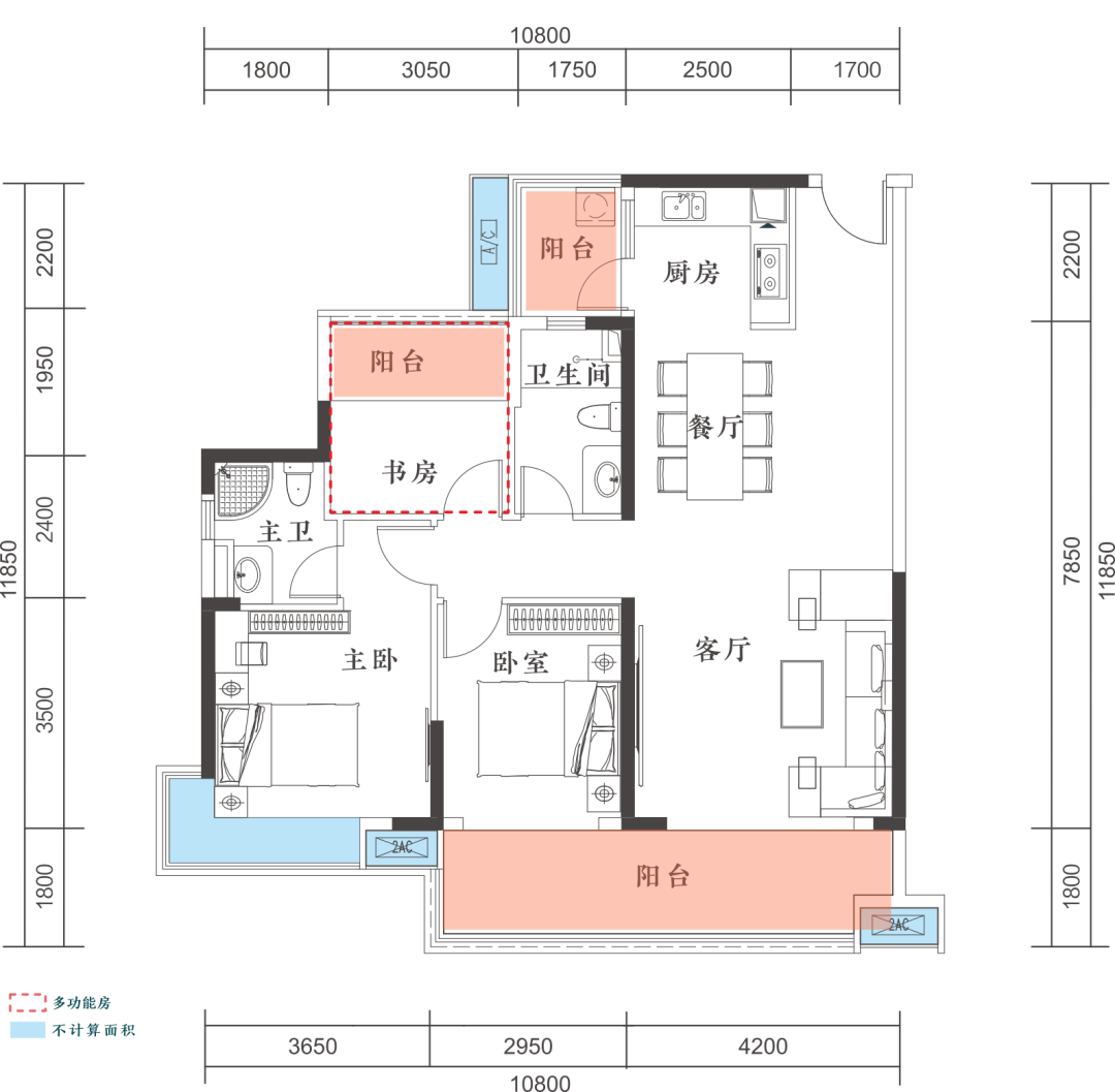
一个温暖而舒适的家,离不开户型空间的合理规划。文华国际约119㎡阳光三房,以完善的功能布局,给予空间更多可能性,承载每一位家庭成员的需求。
生活的舒适感 · 是阳台倾洒的温度
著名现代建筑师路易斯·康曾说到:“房间里令人惊叹的是光,穿透窗户而入的光,属于房间的光。”而阳台,是最接近阳光的地方。

△119㎡户型图
文华国际规划近7M瞰景阳台,约1.8M奢阔进深,连通客厅与次卧,起居公区被整体延展与提亮,南向采光使得阳光满溢清风流连,最大程度减少温室内细菌滋生。

△119㎡样板房实拍图
不仅如此,作为让人无限向往的奢居享受,阳台延伸出来的生活舒适是无可比拟的。这里可以是你家中一座绿意盎然的秘密花园,在钢筋水泥的城市间,安放你的花园梦想;也可以是孩子成长的儿童乐园,是堆积木、画油画、跑赛车的撒欢之所;还可以是先生阅读码字的私享天地,一杯咖啡,一本书籍,让时光在指尖转换,安放生活的温暖优雅。

△示意图
生活的品质感 · 是LDKB一体的尺度
客厅,承载着社交会客功能,也是家人的主要活动场地,无论是整体布局、尺度还是细节打造,都彰显着居者的品味与境界;餐厅,是家中最有温度的地方,一桌热气腾腾的饭菜,家人围坐而食,举杯停著间,尽是简单而踏实的人间烟火味儿。

△119㎡户型图
文华国际餐客厨一体化设计,畅连南向阳台,视觉效果更舒朗开阔,空间也更加通透。闲暇时,陪孩子在客厅玩耍,与家人尽情享受三餐,亦或是邀朋约友畅谈,都能在这片天地尽情享受。

△119㎡样板房实拍图
此外,会客区又与卧室隔离,厨房里大展身手,客厅里惬意追剧,卧室里安静休息,书房里闲适阅读......各区域间互不打扰,让居者生活更加轻松方便。

△示意图
生活的仪式感 · 是主卧套房的气度
关于人居建筑,曾有“无套房,不主卧”的说法。套房式主卧可以给予主人更高的居住舒适感和安全感,保障居者独处空间。

△119㎡户型图
项目约3.7M开间主卧,采用套房式设计,南向瞰景飘窗,延伸景观视野,慵卧其上,窗外美景尽收眼底;独立卫生间,避免晨起洗漱时的拥挤;可按需求规划设计宽敞型步入式衣帽间,完美实现优雅起居的生活理想,满足男女主人不同的收纳需求。

△119㎡样板房实拍图
同时,119㎡采用三房设计,预留约10㎡灵动空间,二人世界时,可打造为健身房、游戏间、书房等,浪漫时光尽情享受;当宝宝来临,书房变成育婴室,方便放置宝宝物品,孩子成长后,育婴室升级为儿童房,让孩子独立的起居空间装满梦想。

△119㎡样板房实拍图
一处理想居所
承载着全家人的幸福格局
装着当下的生活、未来的期盼
文华国际约119㎡户型
安顿家庭生活与个人志趣
让美好成为生活的日常!




【文华国际】
建面约112-136㎡ 品质华宅
全城争藏
以匠心手笔,筑品质华宅
只为郴州市民,打造城市生态宜居社区
项目地址:寒溪路与拥军路交汇处
